home / producten
Licht- ventilatienok
Daglicht in een ruimte is onontbeerlijk, maar kozijnen doen soms niet voldoende.Een lichtstraat, koepel of een ventilatienok, kan een hele uitkomst zijn!
Lichtstraten / koepels
Deze lichtstraat kan zowel als ventilatienok, als geïsoleerde lichstraat worden uitgevoerd.

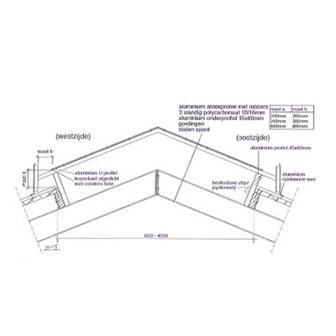
Licht- ventilatienok
Deze ventilatienok wordt vaak in stallen toegepast. De Lichtplaat kan aan de overstekende zijde, maar kan ook aan de "schaduwzijde". Ook is een varriant met aan beide zijden de lichtplaten mogelijk.

ISO- ventilatienok
Deze fraaie nok, zorgt voor een goede ventilatie en veel licht.
